Sülldorfer Landstraße in Hamburg

Sülldorfer Landstraße in Hamburg

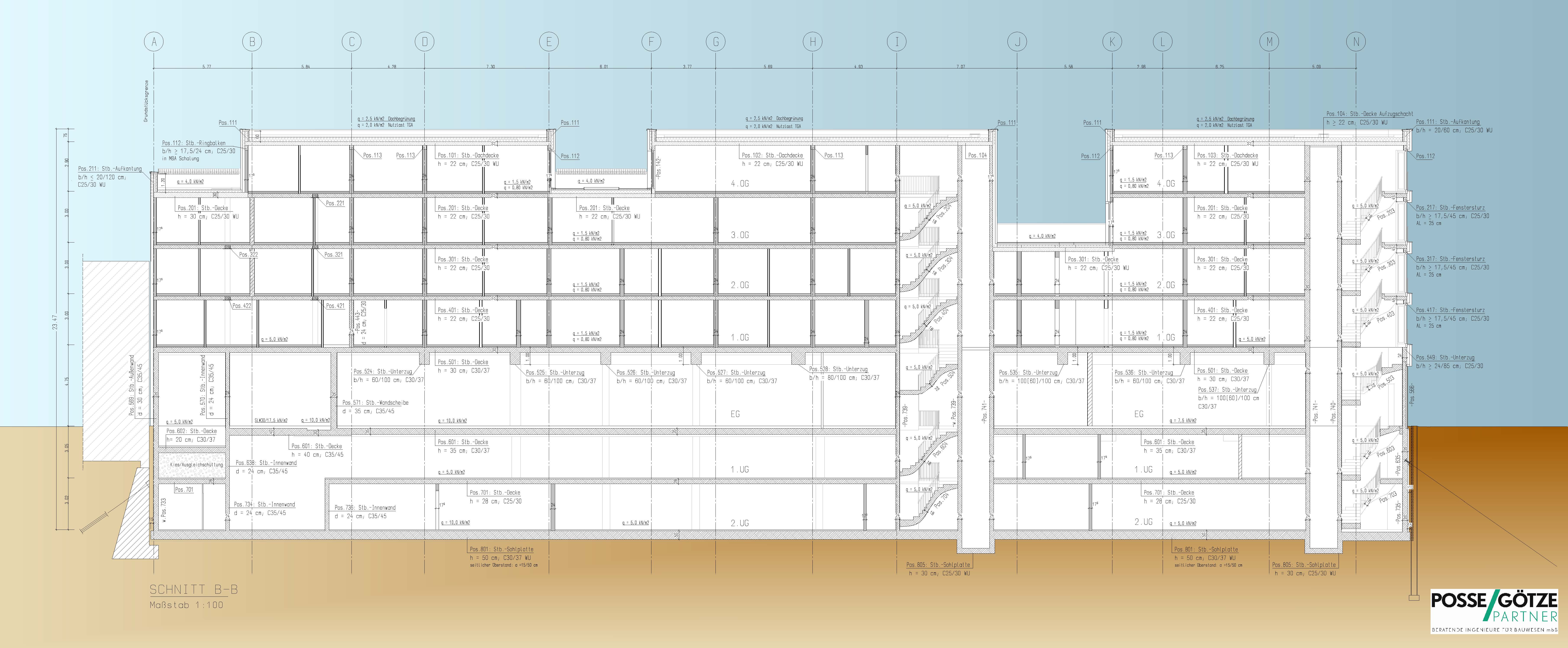
Neubau eines Wohn- und Geschäftshauses in Hamburg Iserbrook mit 5 Ober- und 2 Untergeschossen.

Die Gebäudeausführung erfolgt in Massivbauweise. Im 1. Untergeschoss befindet sich eine Tiefgarage, zum Teil mit Doppelparkern.

Im 2. Untergeschoss sind im wesentlichen Nebenräume untergebracht. Ein Nachbargebäude muss aufgrund der Höhensituation mit einer HDI-Unterfangung gesichert werden.

Um geometrische Herausforderungen gerecht zu werden, kommen in Teilbereichen Hybridbeamträger und punktförmig gestützte Decken zur Ausführung

 Unsere Leistung beinhalten das Konzept für die Baugrube, Tragwerksplanung sowie die Schal- und Bewehrungsplanung.

  • BAUORT
    Sülldorfer Landstr. 1-1a in 22589 Hamburg
  • Leistungen
    Tragwerksplanung LP 1-5
    Baugrubenkonzept
  • Besonderheiten
    Hybridbeamträger
    HDI-Unterfangung
    2 Untergeschosse
    Tiefgarage im 1. Untergeschoss + Doppelparker
  • umbauter Raum
    ca. 34.500 m³
  • Entwurf
    Lorenzen Mayer Architekten GmbH
    Waldemarstr. 33a in 10999 Berlin
  • Zeichnungen
    Posse-Götze & Partner